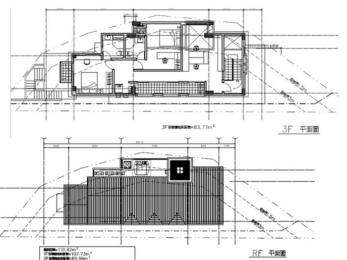
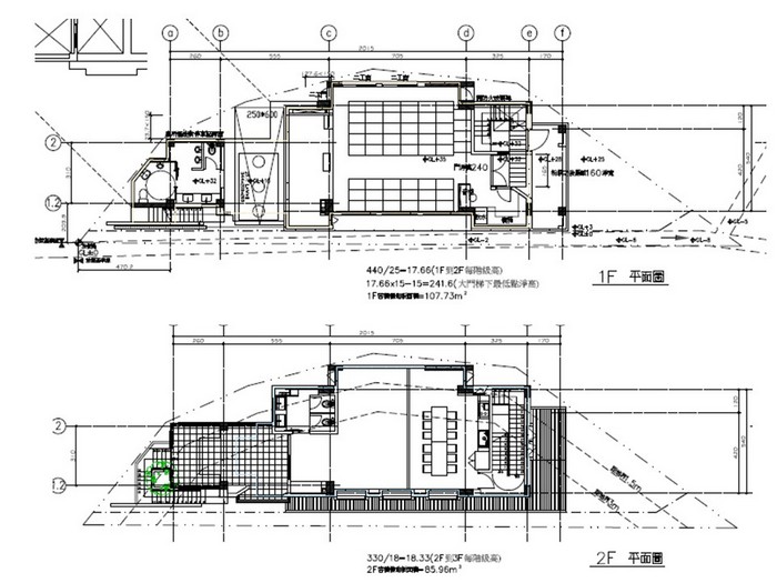
簡介 台南市佳里區成功路213巷76號張凱慧傳道 0981-371-391譚華麗傳道 0975-427-344佳里福音中心 Facebook緣由/發展 109年 林氏家族為紀念父親故 林榮燦弟兄,奉獻233地號農地一塊,希望建為教堂。 111年 變更土地通過。 114年 董事會通過支持1000萬建築費。 114年 10月與建築師簽約完成。需增加地樁約50萬(因地下20公尺皆為黏土)。 114年 差派張凱慧傳道前往開拓,譚華麗傳道協助。 114年 10月連結但以理同工。11月開始拜訪鄰里,建立小組。 教會照片 教會歷史 教會歷史 台南佳里教會 開拓建堂報告聯會宣教教育傳道 譚華麗傳道 門諾會來台設教已經七十年。門諾會的異象是2030年建立30間教會,會友3000名。台南佳里教會成為台灣門諾會第25間教會! 台南佳里區這塊農地是由林約瑟牧師家族於109年奉獻給聯會,希望建立教會紀念他們的父親林榮燦弟兄。 以下是林約瑟牧師敘述佳里教會由來。 我的父親林榮燦執事,母親林陳錦鳳長老,生12個孩子(6男6女),放在今天應該可以得金牌,牌匾上可能刻劃「生產報國,社會楷模」。我母親是第一代的基督徒,台灣光復前(日本時代)民國15年出生,10歲讀小學四年級休學,因母親家中經濟和生爲家中長女,來到台南市私人醫院當小護士。這醫師夫婦是基督徒,禮拜天邀請護士們去做禮拜,參加禮拜者另外加發二天薪資,母親因家庭工作需要,就這樣去教會,就因如此醫師的「別有用心」,母親認識了耶穌。17歲時為病患打針,那位男孩第一眼就喜歡我母親,隔週提親,提親後唯一一次約會(母親說:二人吃午餐,父親叫了十二道大菜包含點心,二人坐大桌)也因如此就建立我們這一家。 結婚後隔年母親生大哥,平均二年生一個孩子,父親是赤腳中醫生(日本時代高中畢業,寫了一手好字),在(臺灣光復後)隔年母親懷二姐時(排行第六),父親發高燒為了面子要快點好,吃自己配的中藥過重而中毒,送往公立醫院不收,回家時爺爺奶奶怪母親,都是信耶穌家才會受咒詛,祖先沒保護。父親在沈睡中忽然開口,說在夢中看到一個穿白衣的來家叩門,叫我母親去找這位穿白衣的,母親就去找牧師,又請聖歌隊穿白詩袍來唱歌,感謝神,父親無意識繼續躺著,牧師用經文及聖歌隊來唱歌後回教會,沈睡三天後父親起床,病竟然全好了,父親回想睡夢中聽到詩歌和白衣者到來,決定陪母親一起去教會看看,(父親因去教會被爺爺知道,家族鬧革命,最後被趕出家族,搬到高雄)。父母住高雄期間母親每週至少一次坐公路局車回台南麻豆,盡媳婦的工作(左一個,右包袱,背一個,肚子還有一個),母親很會暈車,(二公里左右就暈車),一路從高雄吐到台南再吐回高雄。奶奶用話語和雜工(門諾會佳里教會旁井口)洗衣等欺凌母親。 搬到高雄過了7年,聖靈帶領,父親每天讀聖經,每週去教會參加查經班,好明白神的話,當父親決定要受洗那一週,奶奶知道這事(母親有告知),奶奶自己坐夜車來高雄(聽聞奶奶一生,唯一一次單獨離家,並且不告而別),半夜敲門,母親打開門看見婆婆,嚇壞了,然而奶奶告知母親她也要和兒子一起受洗,並向我母親說抱歉,珍惜如此寶貝媳婦。受洗當天父親吹著口琴,家人唱這首歌(父親最愛):信靠順服此外並無別路,為要得主喜悅,唯有信靠順服。奶奶受洗後主日下午母親陪奶奶回去麻豆,爺爺生氣對奶奶說:要受洗爲什麼偷偷跑去沒告訴他,爺爺說:怕什麼?奶奶都不敢回話,媽媽說:爺爺氣到拍桌子並且說:他也要受洗,然後坐在椅子上像沒事發生,喝著茶。 現今我二姐惠貞將井旁地奉獻,以此記念蒙福的林家,也因母親的信仰,三位兒子當牧師,三位女兒嫁牧師。 當時李紫陽牧師擔任董事長,經總幹事孫明仁牧師與同工群努力奔走於109年11月9日申請土地變更,由特定農業區農牧用地變更為同區甲種建築用地。佳里區子龍地段233地號於111年01月07日依法土地變更登記完成。(附土地所有權狀) 經由董事會通過,聯會將於2026年開始正式開拓。聯會出資1000萬元來支持開拓經費,尚需募款1000萬元共2000萬元,為門諾會佳里教會建堂。由吳俊毅建築師事務所設計畫擔任教堂設計。董事會邀請林約瑟牧師擔任開拓佳里教會的指導牧師。張凱慧傳道今年九月一日將正式到任,預備有四個月在兩間門諾教會(林森、松江)實習,明年一月在台南佳里開始設立福音中心。聯會宣教教育傳道譚華麗也偕同配搭開拓。並與台南但以理學院連結,組成福音團隊,高舉基督旗幟,得著台南佳里的靈魂歸主。 願門諾會眾弟兄姊妹舉起聖潔的手為台南佳里教會禱告,求主成就合祂心意的事,讓福音的旗幟飄揚在南台灣,基督福音馨香之氣四處傳揚! 分類項目 地方教會 南區教會